秀和平塚レジデンス 神奈川県平塚市田村3丁目|1,980万円の中古マンション|分譲住宅や新築物件|センチュリー21ヒューベストエステート
| 価格 | 1,980万円 ![]() |
||||
|---|---|---|---|---|---|
| 所在地 | 神奈川県平塚市田村3丁目
この地域周辺の物件を見る |
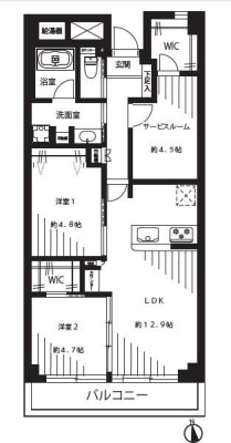
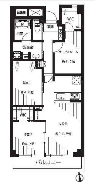
専有面積 | 68.2m2 | 築年月 | 1981年3月築 |
| 交通 |
JR東海道本線 平塚 バス17分 田村団地入口 停歩1分
JR相模線 寒川 徒歩37分 小田急小田原線 本厚木 バス21分 田村団地入口 停歩1分 |
管理費等 | 10,000円 | 修繕積立金 | 10,300円 | 所在階/階数 | 12階/地上13階建 | バルコニー面積 | 5.75m² |
| 間取り | 2SLDK (-) | ||||
| 特徴 |
|
|---|---|
| セールスコメント | - |
| 採光面 | 南 | 取引態様 | 仲介 |
|---|---|---|---|
| 現況 | 空室 | 引渡し | 相談 |
| 総戸数 | 181戸 | 構造 | SRC造 |
| テラス面積 | - | 専用庭面積 | - |
| 駐車場 | 有:10,000円/月 | 駐輪場 | - |
| 建物権利 | - | 土地権利 | 所有権 |
| 用途地域 | 準住居地域 - - | 管理態様 | 管理形態:委託(巡回) 管理組合:なし 管理会社:- |
| 情報更新日 | 2025年11月11日 | 次回更新日 | 2025年11月25日 |
| 小学校区 | 平塚市立神田小学校 (神奈川県平塚市) この学区の他の物件を見る |
中学校区 | 神田中学校 (神奈川県平塚市) この学区の他の物件を見る |
|---|
| 価格 | 万円 | ||
|---|---|---|---|
| 年利率 | % |
||
| ボーナス払い | 返済年数 | ||
| 頭金 | 直接入力する | 万円 | |

毎月のご返済額 |
ボーナス(×年2回) |
物件価格1,980万円 |
![]() |
![]() |
平塚市田村3丁目
1080万円〜1980万円 |
希望の条件で絞り込み
思いのまま、理想の住まいを
資金計画を含めたバランスを考えながら、
理想の住まいを一緒に形にします!
建築について
コストを抑え、理想を叶える
ライフスタイルに合わせこだわりの空間を。
中古住宅+リフォームで理想のマイホームを
形作ることができます。
リフォームについて
売却も買取もプロがご対応
小田原市・平塚市・厚木市・県央・西湘・
湘南エリアの不動産査定・売却はセンチュリー21ヒューベストエステートにお任せください。
不動産売却について
悩みに寄り添う不動産会社
平塚店
小田原店
☆ヒューベストエステートと理想のすまい探し☆南向き高層階で解放感のある生活