小田原市扇町 平屋新築戸建 神奈川県小田原市扇町2丁目|4,280万円の新築一戸建て|センチュリー21ヒューベストエステート
| 価格 | 4,280万円 ![]() |
||||
|---|---|---|---|---|---|
| 所在地 | 神奈川県小田原市扇町2丁目
この地域周辺の物件を見る |
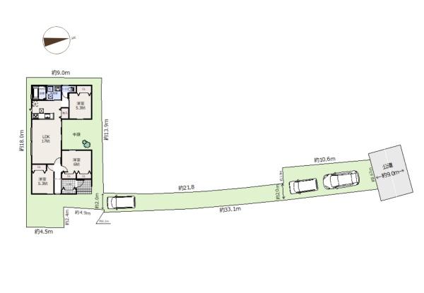
土地面積 | 240.6m² (72.78坪) | 建物面積 | 78.66m2 |
| 築年月 | 2026年8月築 | 間取り | 3LDK (-) | ||
| 交通 |
伊豆箱根鉄道大雄山線 井細田 徒歩5分
小田急小田原線 足柄 徒歩14分 伊豆箱根鉄道大雄山線 五百羅漢 徒歩13分 |
||||
| 特徴 |
|
|---|---|
| セールスコメント | - |
| 採光面 | - | 構造/階数 | 木造/地上1階建 |
|---|---|---|---|
| 建ぺい率 | 60(%) | 容積率 | 200(%) |
| 駐車場 | 有 | 現況/引渡し | 建築中/相談 |
| 土地権利 | 所有権 | 私道負担面積 | - |
| 接道状況 | 接道: 北東 3.6m 公道 道路幅: 9m | 用途地域 |
準住居地域
|
| セットバック | - | 法令上の制限 | 高度地区;準防火地域 |
| 地目 | 宅地 | 地勢 | |
| 建築確認番号 | 第25UDI1K建02379号 | 都市計画 | 市街化区域 |
| 取引態様 | 売主 | ||
| 情報更新日 | 2026年03月04日 | 次回更新日 | 2026年03月18日 |
| 小学校区 | 小田原市立足柄小学校 (神奈川県小田原市) この学区の他の物件を見る |
中学校区 | 白山中学校 (神奈川県小田原市) この学区の他の物件を見る |
|---|
| 価格 | 万円 | ||
|---|---|---|---|
| 年利率 | % |
||
| ボーナス払い | 返済年数 | ||
| 頭金 | 直接入力する | 万円 | |

毎月のご返済額 |
ボーナス(×年2回) |
物件価格4,280万円 |
希望の条件で絞り込み
思いのまま、理想の住まいを
資金計画を含めたバランスを考えながら、
理想の住まいを一緒に形にします!
建築について
コストを抑え、理想を叶える
ライフスタイルに合わせこだわりの空間を。
中古住宅+リフォームで理想のマイホームを
形作ることができます。
リフォームについて
売却も買取もプロがご対応
小田原市・平塚市・厚木市・県央・西湘・
湘南エリアの不動産査定・売却はセンチュリー21ヒューベストエステートにお任せください。
不動産売却について
悩みに寄り添う不動産会社
平塚店
小田原店
☆ヒューベストエステートと理想のすまい探し☆アクセス便利高性能の新築平屋